Villa a schiera in vendita

Poirino, Via Cavour
€ 229.000
Prezzo aggiornato
7 locali 7 locali
241 Mq 241 Mq
2 bagni 2 bagni

Villa a schiera in vendita

Poirino, Via Cavour

Descrizione annuncio

Nel comune di Poirino, in una zona tranquilla e comoda ai servizi, proponiamo in vendita una villa libera su tre lati, ideale per chi desidera spazi ampi, indipendenza e comfort.

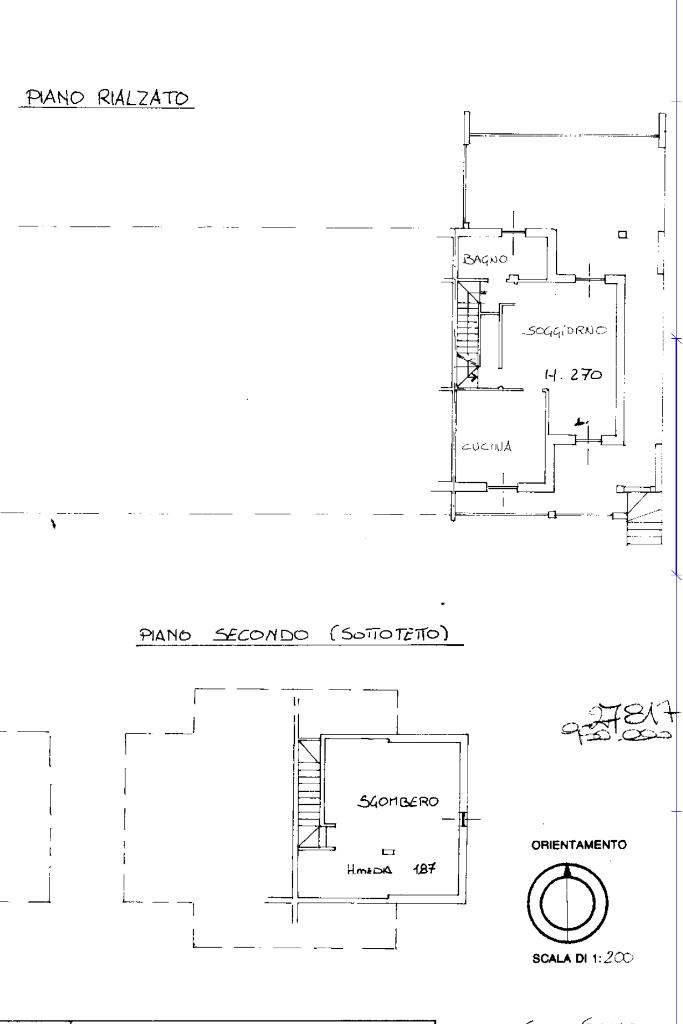
L’abitazione si sviluppa su più livelli e si distingue per la luminosità e la cura degli ambienti. Al piano terreno troviamo l’ingresso su un’ampia sala, accogliente e ben disposta, con accesso diretto al terrazzo — uno spazio perfetto per pranzi all’aperto e momenti di relax. La cucina è spaziosa e funzionale, mentre il bagno di servizio completa il piano con praticità.

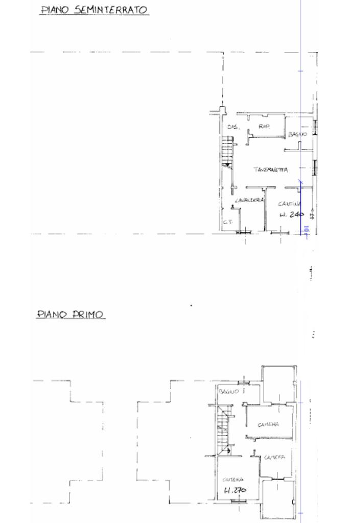
Salendo al primo piano si accede alla zona notte, composta da tre camere da letto e un secondo bagno. Due delle camere godono di un terrazzo privato, che regala piacevoli scorci e garantisce una bella luminosità agli ambienti.

All’ultimo piano troviamo un locale sottotetto, versatile e ideale come studio, palestra o stanza hobby.

Il piano interrato offre tutto lo spazio necessario per la vita quotidiana: un box doppio, una taverna accogliente, una cantina e una lavanderia ben organizzata.

All’esterno, la proprietà è completata da un giardino privato, perfetto per chi desidera uno spazio verde facile da gestire.

La villa dispone di riscaldamento autonomo, garantendo indipendenza e controllo dei consumi.

Una soluzione ideale per famiglie che cercano una casa comoda, moderna e ben distribuita, in un contesto riservato ma vicino al centro di Poirino.

Mostra tutto

Nelle vicinanze

Trasporto pubblico Trasporto pubblico
Poirino (Annunziata)
Poirino (Annunziata)
340 m
Poirino (v. Indipendenza)
Poirino (v. Indipendenza)
440 m
Scuole Scuole
Scuola Elementare Paolo Gaidano
290 m
Scuola Media Statale "Paolo Camillo Thaon di Revel"
670 m
Farmacia Farmacia
Farmacia Basso
280 m
Farmacia San Carlo
330 m
Supermercati Supermercati
Carrefour Express
190 m
Catering
940 m
Gross Iper Poirino
2,1 Km
Negozi Negozi
Panetteria Il Forno
160 m
Panificio Gallo
200 m
Aurora Abbigliamento
210 m
Pop Corn
210 m
Sapore di Pane
290 m
Bar Bar
Granbar Gaidano
250 m
Alex Bar
300 m
Caffè Carignano
300 m
Asganaway Bar
580 m
Bar Liberty Di Avarello Giuseppina & C.
600 m
Ristoranti Ristoranti
Osto' d San Roch
120 m
Primavera
290 m
Pizzeria Ristorante Trau Brusa
740 m
Ristorante Pizzeria Il Nilo Da Mimmo
780 m
Mostra tutto

Caratteristiche

Rif.:
61136830
Piano:
Su più livelli di 1
Totale piani:
1
Box:
2
Balconi:
2
Terrazzi:
3
Mostra tutto
Prezzo Prezzo
€ 229.000
Rata mutuo Rata mutuo
€ 1.079 / mese
Spese annue Spese annue
€ 0
Proponi il tuo prezzoProponi il tuo prezzo

Classe Energetica

F
F
F
F
F
F
F
F
F
EP globale non rinnovabile:
263.04 kW h/m² anno
EP globale rinnovabile:
125.00 kW h/m² anno
EP invernale del fabbricato:
EP estiva del fabbricato:
Anno di costruzione:
1999
Riscaldamento:
Autonomo
Tipo impianto:
A radiatori
Tipo alimentazione:
Metano

Prezzo ridotto di €1 (9%%)

Ti interessa visionare l'immobile?

Fissa un appuntamento  Fissa un appuntamento

Richiedi informazioni

Clicca su Leggi per aprire l'informativa
* Questi campi sono obbligatori

Calcola il tuo mutuo

Semplice e senza impegno
Anticipo

( % )
Mutuo

( % )

pochi semplici passi

inserisci i tuoi dati
Questionario completato
Grazie per aver richiesto un appuntamento senza impegno con un nostro Consulente del Credito e Assicurativo.

Hai inserito correttamente tutti i dati necessari e a breve riceverai una e-mail con un link da convalidare per inviare i tuoi dati.
Affiliato
Poirino Re Sas
Via Indipendenza, 7 10046 Poirino (TO)

Il nostro staff


  • Nicholas Cocozza
    Affiliato

  • Edoardo Cenci
    Responsabile

  • Barbara Cappiello
    Coordinatrice
Via Indipendenza, 7 10046 Poirino (TO)
Zona: Poirino-Pralormo-Isolabella
Mostra su mappa
Orari: lunedì -venerdì 09:00 - 12:30 e 15:00 - 19:30; sabato chiusura ore 18:00
Affiliato
Poirino Re Sas
Via Indipendenza, 7 10046 Poirino (TO)

2026 Tecnocasa Franchising S.p.A. - P. IVA 08365160152 - Via Monte Bianco 60/A 20089 Rozzano (MI). Ogni agenzia ha un proprio titolare ed è autonoma. Privacy policy | Policy utilizzo | Cookie policy